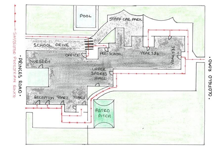
School Campus Plans
To visitors and friends who are unfamiliar with our school campus it can appear to be a big and daunting place. Please use the following plans to find your way around our school, and, of course, children and staff working in school are always ready to help people find their way around. You just need to ask.

